Zum Hauptinhalt springen

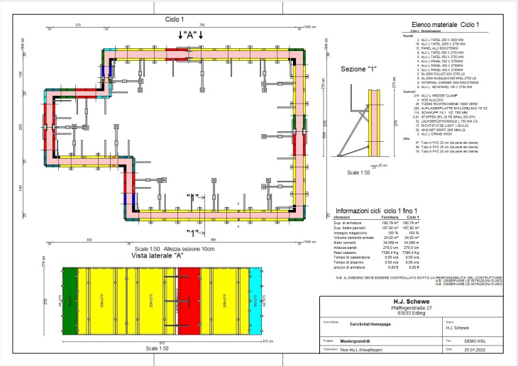
NOE, Alu L

EUR 450,00

incl. Tax, excl. Shipping

Formwork bearing for EuroSchal. You must now add a formwork programme wall full version or update.